Back to Portfolio

C. G. Jung Institute of San Francisco.

San Francisco, California, 2023

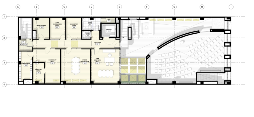
This project provides a new home for the C.G. Jung Institute. The building provides for a number of functions: training for emerging psychotherapists, psychotherapy services for the general public, event space for large meetings and dinners, a library, and office space.  In addition, the building will house the Archive for Research in Archetypal  Symbolism. An atrium brings natural light and air into the urban setting and links all three floors from ground to sky.

The façade, designed in collaboration with artist Amy Trachtenberg, is rendered in glazed brick and evokes associations with the natural world. The variegated and soft green hues with turquoise accents speak to earth and flora, sea, and sky. The six columns are individually articulated by patterns in white tile reflective of the tree of life motif and abstracted elements that appear in folk art, carpets, and textiles universally.

Owner: C. G. Jung Institute of San Francisco
Architect: David Trachtenberg, Mauricio De la Peña, Eric Tam, Guilllermo Otero, Daniel Kalani.
Artist for Facade: Amy Trachtenberg
Builder: Oliver & Company
Structural Engineer: Degenkolb
Photography: Ken Gutmaker

Budget: $6M