Back to Portfolio

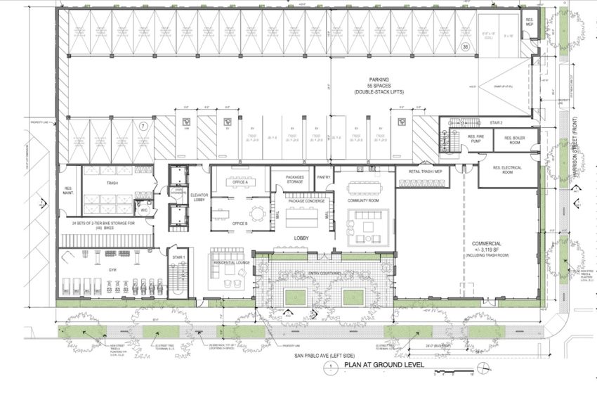
Aquatic IV – San Pablo Ave.

Berkeley, 2021

The project will contain 104 dwellings, parking for 55 cars and 48 bicycles and one commercial space at street level. Twenty percent of the units are “below market rate” affordable. Two rooftop gardens help to break down the six story mass of the building.

The project is expected to commence construction in 2021.

Owner:  RI Berkeley, LLC.
Trachtenberg Architects: Isaiah Stackhouse, David Trachtenberg,  Neven Krickovic, Mauricio De la Peña, Daniel Kalani.
Structural Engineer:  Vertek Structural Engineers
General Contractor: West Builders, Inc.
Landscape Architect:  Jett Landscape Architect